相談円/坪
共益費
相談入居可能日
未定契約期間
相談(36ヶ月間以内)所在地
千葉県市川市加藤新田面積
問い合わせ構造規模
地上4階所在階
-物件設備
高床式
IC3km以内
免震
倉庫内空調
冷凍冷蔵
物件紹介
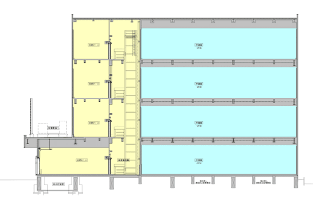
千葉県市川市加藤新田に位置する2022年竣工の倉庫は、工業地域内の地上4階・延床約2,645坪の高床式(床高1m)施設で、危険物の保管は不可のスペース貸しとして提供しています。東京都心から約15km、東関東自動車道の最寄ICから約0.8kmと交通利便性が高く、周辺にスーパーやドラッグストアなど生活利便施設が揃っています。貸主が設置する自然冷媒の冷凍設備を備え、冷蔵5℃、冷凍-25℃まで対応しフロン対策や電力のランニングコスト面でメリットがある点が特徴です。24時間稼働可能でドックシェルター・直角接車により2t・4t・10tトラックの発着が可能(同時発着台数10台)、垂直搬送機やエレベーターを備え、検査済証や耐震・免振・制震構造、事務所や男女別トイレ、休憩室、屋外駐車場といったアメニティも充実しているため、冷凍・冷蔵品の保管や流通拠点、一棟貸しによる大規模な物流用途に適した物件です。
物件情報
面積
問い合わせ所在地
千葉県市川市加藤新田構造規模
地上4階所在階
-入居可能日
未定空室用途
倉庫取引態様
貸主管理コード
4845契約条件
坪単価
相談賃料
相談共益費
相談契約期間
相談(36ヶ月間以内)敷金・保証金
相談礼金
相談償却
-所在地
千葉県市川市加藤新田東関東自動車道 千鳥町IC 0.8km
※ピンの位置は正確ではない場合があります。




