7,000円/坪
共益費
相談入居可能日
相談契約期間
相談(36ヶ月間以内)所在地
鹿児島県霧島市国分下井面積
499坪(1,646.7㎡)構造規模
地上1階所在階
-物件設備
開発中・新築
低床式
駅15分以内
IC3km以内
倉庫内空調
物件紹介
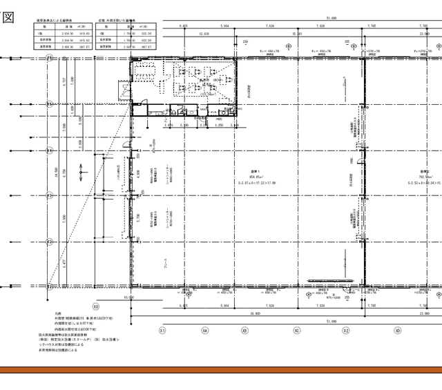
福岡県霧島市国分下井に新設される本倉庫は、2025年11月竣工予定の鉄筋造平屋で、延べ床面積499.5坪の低床一棟物件です。国分インターから約1.8km、国分駅からバス・車で約13分の立地で、24時間稼働に対応します。倉庫内は天井高7〜9m、庇下有効高6m、床荷重1.5トン、倉庫内電源100V・200Vを備え、換気空調14台で定温管理(夏季目安28℃程度)や常温保管が可能です。マルチタイプバースから各種トラックやトレーラー、鉄道コンテナの発着に対応し、待機10台・発着2台の運用が可能です。事務所・男女別トイレ・屋外駐車場があり、営業倉庫許可申請も可能です。提供方法はスペース貸しで、一棟での貸出にも対応します。
物件情報
面積
499坪(1,646.7㎡)所在地
鹿児島県霧島市国分下井構造規模
地上1階所在階
-入居可能日
相談空室用途
倉庫取引態様
貸主管理コード
7765契約条件
坪単価
7,000円/坪賃料
3,493,000円共益費
相談契約期間
相談(36ヶ月間以内)敷金・保証金
相談礼金
相談償却
-所在地
鹿児島県霧島市国分下井国分インター 東九州自動車道(鹿児島区間)IC 1.8km
※ピンの位置は正確ではない場合があります。




