物件設備
駅15分以内
IC3km以内
物件紹介
東京都江東区東雲に位置するスペース貸しの倉庫で、面積は70.6坪です。りんかい線・東雲駅から徒歩7分、有明ICから1kmと交通アクセスに優れており、都心部や湾岸方面への配送動線が確保しやすい立地です。荷物の一時保管や地域内物流の拠点、ECの入出荷など幅広い企業ニーズに対応が想定され、稼働開始時期や使用用途に応じたご相談にも対応いたします。詳細な設備構成や契約条件については別途ご案内いたします。
物件情報
面積
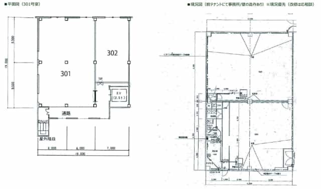
70.6坪(233.1㎡)所在地
東京都江東区東雲構造規模
地上4階所在階
3F入居可能日
相談空室用途
倉庫取引態様
媒介契約条件
坪単価
11,000円/坪賃料
775,500円共益費
232,650円契約期間
2年敷金・保証金
8ヶ月礼金
1ヶ月償却
2ヶ月所在地
東京都江東区東雲首都高速道路 有明IC 1km
※ピンの位置は正確ではない場合があります。





