千葉県千葉市若葉区上泉町[C25565]
問い合わせ東関東自動車道 佐倉IC 12km
物件画像一覧
個別見積
入居可能日
未定契約期間
原則3ヶ月~所在地
千葉県千葉市若葉区上泉町構造規模
地上1階所在階
-物件設備
低床式
物件紹介
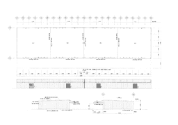
千葉県千葉市若葉区上泉町に立地する低床・平屋構造の倉庫で、延べ床面積は約1,200坪(300坪×4室)です。隣接する蔵とはシャッターで行き来でき、下屋が約10m張り出しているため雨天時でも積込みが可能です。床荷重は2.7t/㎡、電動フォークリフトや木製パレットを備え、入出庫は直角接車・平行接車に対応、トレーラーや10t・4t・2t車などの発着が可能で待機台数10台・発着台数5台の運用が想定されます。スペース貸しに加え作業受託の提供があり、管理者常駐や防犯カメラ、カードキー等のセキュリティ、別棟の事務所や男女別トイレ・休憩室・シャワーなどのアメニティが整っています。竣工は2021年で検査済証有物件、定温倉庫も併設しており、最寄り高速ICからは約12kmです。
物件情報
面積
問い合わせ所在地
千葉県千葉市若葉区上泉町構造規模
地上1階所在階
-入居可能日
未定空室用途
倉庫取引態様
寄託管理コード
3733契約条件
保管料
個別見積初期費用
個別見積入出庫作業料
ご契約時のプランにより変動契約期間
原則3ヶ月~輸送料
相談所在地
千葉県千葉市若葉区上泉町東関東自動車道 佐倉IC 12km
※ピンの位置は正確ではない場合があります。


