相談円/坪
共益費
相談入居可能日
未定契約期間
相談(36ヶ月間以内)所在地
千葉県市川市加藤新田面積
問い合わせ構造規模
地上4階所在階
-物件設備
高床式
IC3km以内
免震
倉庫内空調
冷凍冷蔵
物件紹介
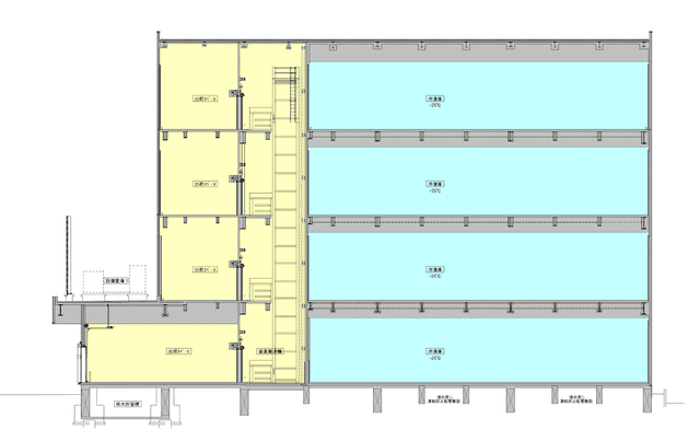
千葉県市川市加藤新田にある本物件は、2022年竣工の工業地域内倉庫で、延べ床面積約2,644.8坪・地上4階建てのスペース貸しとして提供されています。床高は高床1mで、貸主設置の冷凍設備(自然冷媒採用)により冷蔵5℃、冷凍-25℃〜5℃に対応し、フロン対策が可能なうえ初期費用や原状回復費用が不要でランニングコスト面にも配慮されています。稼働は24時間365日対応、ドックシェルター付きの直角接車式バースで2t〜10tトラックの発着に対応し、発着台数は10台程度、エレベーターや垂直搬送機を備えています。倉庫内空調・事務所・男女別トイレ・休憩室や屋外駐車場も整い、東関東自動車道千鳥町ICから約0.8km、東京都心から15km圏内で、周辺にスーパーやドラッグストア等が近接しているため地域内物流や冷蔵・冷凍保管用途に適した物件です。
物件情報
面積
問い合わせ所在地
千葉県市川市加藤新田構造規模
地上4階所在階
-入居可能日
未定空室用途
倉庫取引態様
貸主管理コード
4843契約条件
坪単価
相談賃料
相談共益費
相談契約期間
相談(36ヶ月間以内)敷金・保証金
相談礼金
相談償却
-所在地
千葉県市川市加藤新田東関東自動車道 千鳥町IC 0.8km
※ピンの位置は正確ではない場合があります。




